

*Plan may show available options and upgrades. Click to zoom. Scroll to zoom. Drag to pan.
Your Custom Home Floor Plan
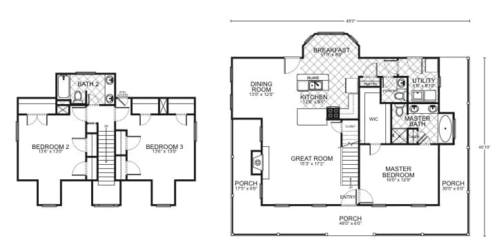
Dallas Floor Plan
3 Beds
2.5 Baths
1,921 Sq Ft
$0 Down - No Payments During Construction*
*With approved credit. No traditional construction loan required.
Envision your life in this masterfully designed floor plan, ideal for those who value both charm and functionality in their custom-built home. Spanning a total under-roof area of 2640 sq. ft., this plan cleverly utilizes space to create a warm and inviting atmosphere.
Upon entry, you are greeted by a spacious great room, measuring 15’8″ x 17’2″, which serves as the heart of the home, where family and friends can gather. The great room opens up to a dining room, ensuring meals are enjoyed in a designated yet open space, enhancing the home’s social flow.
The kitchen, equipped with modern amenities and an adjoining breakfast area, is thoughtfully laid out to inspire culinary creativity while facilitating easy everyday dining. It also connects to a utility room, adding to the convenience with additional storage options.
The master suite is a sanctuary designed for relaxation, featuring a large bedroom with a sizeable porch for private outdoor access, a walk-in closet, and a master bath designed for comfort and ease.
Two additional bedrooms are situated on the second floor, each generously sized and conveniently located near the second full bathroom, offering privacy and comfort for family or guests. These rooms are versatile and can be adapted to any lifestyle, whether for sleeping, office work, or hobbies.
The wraparound porch is a signature feature of this home, providing ample space for outdoor leisure and entertainment, enhancing the indoor-outdoor living experience.
This floor plan represents an opportunity to craft a home that’s as practical as it is picturesque, perfect for those looking to create a space that’s truly their own.
Living Area
1,921 sq ft
Bedrooms
3
Bathrooms
2.5
Stories
2
Speak To Your New Custom Home Builder Today!
25+
Years Experience
3,000+
Homes Built
5
Office Locations
A+
BBB Rating
Make It Yours
Customize the Dallas
Every floor plan is a starting point, not a box. Work directly with our design team to personalize every detail of the Dallas to fit your land, your family, and your lifestyle - at a price that's clear from day one.
Cabinet styles and finishes
Flooring throughout
Countertops and backsplashes
Exterior colors and materials
Structural layout changes
Fixtures and hardware
Ceiling treatments
Porch and outdoor living
How It Works
Build the Dallas in 5 Simple Steps
From free site evaluation to move-in day. One team, one price, one beautiful home.
01
Free Site Evaluation
We assess your land for build-readiness including soil, utilities, and access.
02
Choose Your Plan
Select the Dallas or customize it. Bring your own plan too.
03
Get Clear Pricing
Transparent pricing with no hidden fees or surprises.
04
Build Begins
Our experienced team breaks ground with one dedicated point of contact.
05
Move In
Walk through your finished dream home and start making memories.
Take the Next Step
Get Details for the Dallas
Tell us where you want to build and we'll match you with your local team.
Mortgage Calculator
*Estimate only. Does not include taxes and insurance. WAC.
$
$
%
Estimated Monthly Payment
$2,213/mo
Common Questions
Dallas Floor Plan FAQ
Yes. Every Southwest Homes floor plan is a starting point. Work directly with our design team to personalize cabinet finishes, flooring, countertops, fixtures, exterior colors, and structural options. We adapt the Dallas to fit your land, your family, and your lifestyle.
No - traditional construction loans require you to pay interest. We work with lenders who offer construction-to-permanent financing that simplifies this - often with $0 down and no payments and no interest until the build is complete. *WAC
Pricing depends on the floor plan, location, lot conditions, and customizations you choose. We provide transparent pricing with no hidden fees. Contact us for a personalized quote based on your specific plan and land.
Every home is different - the time frame changes from permit approval to move-in, depending on the plan size, site conditions, local permitting timelines, and even weather conditions. Your project manager will give you a specific schedule during the planning phase.
We typically serve a 100-mile radius around each of our offices in San Antonio, Corpus Christi, Canton TX, and Springdale AR. If you're unsure whether your land is in our service area, call your nearest office and we'll let you know right away.
Yes. Southwest Homes offers a Bring Your Own Plan option. If you have a design you love, our team can review it and provide pricing to build it on your land. Learn more about Bring Your Own Plan.
Ready to Build the Dallas on Your Land?
No construction loan required. Transparent pricing. Free site evaluation. 25+ years and 3,000+ homes built.



