
Driftwood C
3 Bed 2 Bath 1,853 sqft
View Plan

*Plan may show available options and upgrades. Click to zoom. Scroll to zoom. Drag to pan.
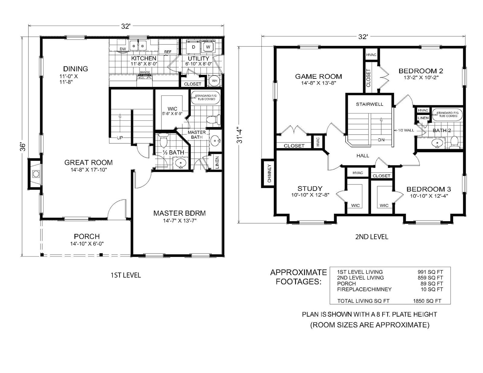
With spacious gathering areas on the main level and private bedroom retreats upstairs, this layout is perfect for families who want room to grow without sacrificing everyday convenience.
The first level features an inviting great room that seamlessly connects to the dining area, creating an open-concept space ideal for entertaining or relaxing after a long day. The well-planned kitchen includes an efficient layout with plenty of counter space, making meal prep easy and enjoyable. A conveniently located utility room, half bath, and storage areas add to the home’s practicality, while the master suite offers a peaceful retreat with a well-appointed master bath and large walk-in closet.
Upstairs, a generous game room serves as the centerpiece of the second level, providing the perfect spot for movie nights, playtime, or a dedicated lounge area. Two additional bedrooms, each with ample closet space, share a full bath, while a private study offers the flexibility for a home office, hobby room, or optional fourth bedroom.
With approximately 1,850 square feet of total living space, this two-story design offers efficiency without compromising comfort. Thoughtfully arranged rooms, abundant storage, and inviting shared spaces come together to create a home that supports both quiet moments and vibrant family living.
The Kingsville floor plan delivers practical elegance, intuitive flow, and the versatility that today’s homeowners value most. It is an excellent choice for anyone seeking a well-crafted layout with character, comfort, and room to enjoy every season of life.
Every floor plan is a starting point, not a box. Work directly with our design team to personalize every detail of the Kingsville to fit your land, your family, and your lifestyle - at a price that's clear from day one.
From free site evaluation to move-in day. One team, one price, one beautiful home.
We assess your land for build-readiness including soil, utilities, and access.
Select the Kingsville or customize it. Bring your own plan too.
Transparent pricing with no hidden fees or surprises.
Our experienced team breaks ground with one dedicated point of contact.
Walk through your finished dream home and start making memories.
Tell us where you want to build and we'll match you with your local team.
*Estimate only. Does not include taxes and insurance. WAC.
No construction loan required. Transparent pricing. Free site evaluation. 25+ years and 3,000+ homes built.
Fill out the form below and your local builder rep will send you full pricing and specs.