

*Plan may show available options and upgrades. Click to zoom. Scroll to zoom. Drag to pan.
Your Custom Home Floor Plan
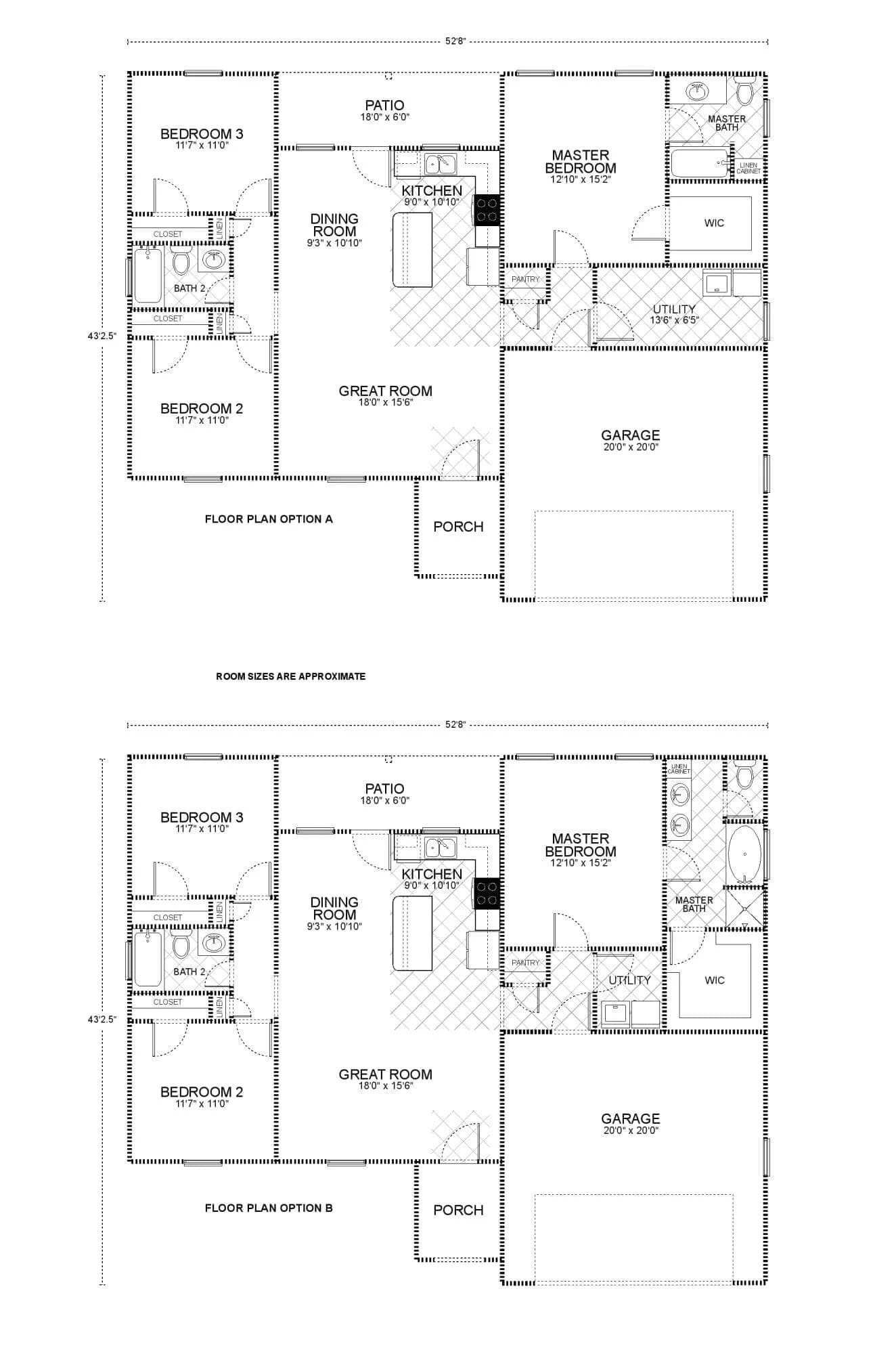
Landry Floor Plan
3 Beds
2 Baths
1,412 Sq Ft
2 Cars
$0 Down - No Payments During Construction*
*With approved credit. No traditional construction loan required.
The Landry floor plan presents two options (A and B), each offering a unique take on a spacious and modern living arrangement.
Option A:
This layout features a substantial living area that is perfect for family living and entertaining, with a large great room measuring 18’0″ x 15’6″. The adjoining kitchen and dining room create an open, airy feel and a seamless flow for mealtimes and gatherings. The kitchen features ample counter space and a practical layout for convenience and ease of use. The master bedroom is a private sanctuary with a sizeable walk-in closet and a full master bath, providing a retreat-like atmosphere for relaxation. Two additional bedrooms offer comfortable spaces for family or guests, with a second full bath easily accessible. This option also includes a utility room, ensuring practicality in everyday living. The outdoor living potential is maximized with both a porch and a patio, ideal for outdoor enjoyment and entertaining.
Option B:
Similar to Option A, this floor plan offers a spacious great room and an efficiently designed kitchen and dining area. The master bedroom remains a comfortable retreat with its own bath and closet space. The second and third bedrooms are well-sized, and the utility room retains its practical placement for household chores. Option B maintains the porch and patio areas, providing ample outdoor space for relaxation and entertainment.
Both options of the Landry floor plan feature a large garage and a total under-roof space that exceeds 2000 square feet, ensuring that there is plenty of room for vehicles and storage. The living spaces are carefully designed to accommodate a contemporary lifestyle, blending functionality with comfort and style.
Living Area
1,412 sq ft
Bedrooms
3
Bathrooms
2
Stories
1
Cars
2
Speak To Your New Custom Home Builder Today!
25+
Years Experience
3,000+
Homes Built
5
Office Locations
A+
BBB Rating
Make It Yours
Customize the Landry
Every floor plan is a starting point, not a box. Work directly with our design team to personalize every detail of the Landry to fit your land, your family, and your lifestyle - at a price that's clear from day one.
Cabinet styles and finishes
Flooring throughout
Countertops and backsplashes
Exterior colors and materials
Structural layout changes
Fixtures and hardware
Ceiling treatments
Porch and outdoor living
How It Works
Build the Landry in 5 Simple Steps
From free site evaluation to move-in day. One team, one price, one beautiful home.
01
Free Site Evaluation
We assess your land for build-readiness including soil, utilities, and access.
02
Choose Your Plan
Select the Landry or customize it. Bring your own plan too.
03
Get Clear Pricing
Transparent pricing with no hidden fees or surprises.
04
Build Begins
Our experienced team breaks ground with one dedicated point of contact.
05
Move In
Walk through your finished dream home and start making memories.
Take the Next Step
Get Details for the Landry
Tell us where you want to build and we'll match you with your local team.
Mortgage Calculator
*Estimate only. Does not include taxes and insurance. WAC.
$
$
%
Estimated Monthly Payment
$2,213/mo
Common Questions
Landry Floor Plan FAQ
Yes. Every Southwest Homes floor plan is a starting point. Work directly with our design team to personalize cabinet finishes, flooring, countertops, fixtures, exterior colors, and structural options. We adapt the Landry to fit your land, your family, and your lifestyle.
No - traditional construction loans require you to pay interest. We work with lenders who offer construction-to-permanent financing that simplifies this - often with $0 down and no payments and no interest until the build is complete. *WAC
Pricing depends on the floor plan, location, lot conditions, and customizations you choose. We provide transparent pricing with no hidden fees. Contact us for a personalized quote based on your specific plan and land.
Every home is different - the time frame changes from permit approval to move-in, depending on the plan size, site conditions, local permitting timelines, and even weather conditions. Your project manager will give you a specific schedule during the planning phase.
We typically serve a 100-mile radius around each of our offices in San Antonio, Corpus Christi, Canton TX, and Springdale AR. If you're unsure whether your land is in our service area, call your nearest office and we'll let you know right away.
Yes. Southwest Homes offers a Bring Your Own Plan option. If you have a design you love, our team can review it and provide pricing to build it on your land. Learn more about Bring Your Own Plan.
Ready to Build the Landry on Your Land?
No construction loan required. Transparent pricing. Free site evaluation. 25+ years and 3,000+ homes built.



