
Lockhart B
4 Bed 2 Bath 2,427 sqft
View Plan

*Plan may show available options and upgrades. Click to zoom. Scroll to zoom. Drag to pan.
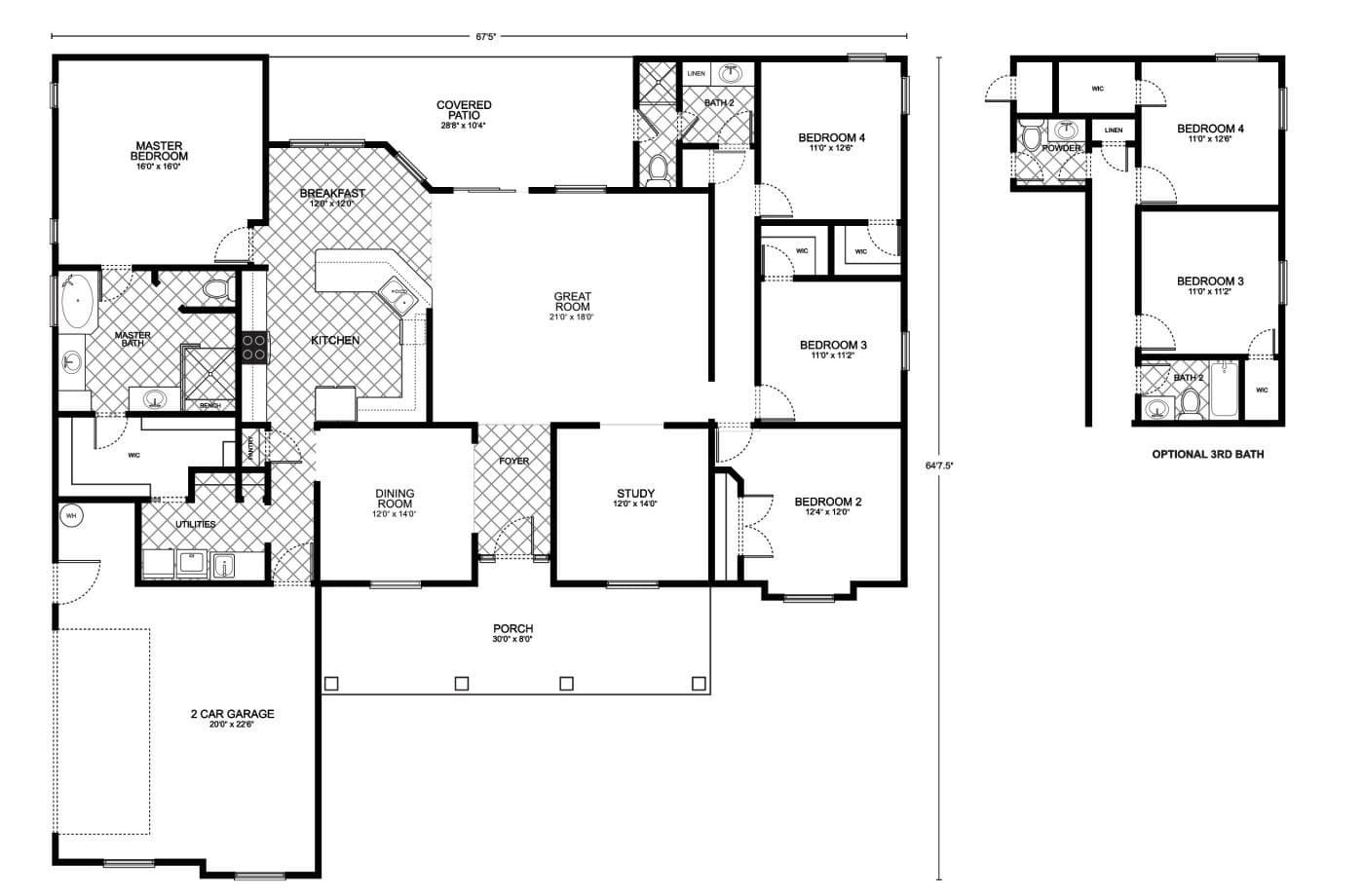
This inviting floor plan offers a harmonious balance of style, comfort, and practicality, encompassing approximately 2501 square feet of living space designed to cater to both intimate family life and grand entertaining. As you step into the home, you’re greeted by an elegant foyer that leads to a spacious great room with high ceilings, providing a grand area for relaxation and social events.
The heart of this home is the open-concept kitchen, overlooking a cozy breakfast nook and leading to a covered patio, perfect for al fresco dining or morning coffee. The kitchen is designed for both the casual cook and the culinary enthusiast, with ample counter space and a functional layout.
The luxurious master bedroom is a sanctuary, featuring a large walk-in closet and a master bath with dual vanities and a separate shower, offering a spa-like experience. The additional three bedrooms are well-sized and thoughtfully placed to ensure privacy, with the option for a third bathroom, making it ideal for a growing family or hosting guests.
A dedicated study room provides a quiet space for work or study. Practicality is paramount with a substantial utility room and a two-car garage. The outdoor living space, totaling 515 square feet, is a bonus for those who enjoy the outdoors.
With a total under-roof area of 3581 square feet, this home combines functional design with elegance, making it an ideal choice for those seeking a comfortable and luxurious living experience.
Every floor plan is a starting point, not a box. Work directly with our design team to personalize every detail of the Lockhart C to fit your land, your family, and your lifestyle - at a price that's clear from day one.
From free site evaluation to move-in day. One team, one price, one beautiful home.
We assess your land for build-readiness including soil, utilities, and access.
Select the Lockhart C or customize it. Bring your own plan too.
Transparent pricing with no hidden fees or surprises.
Our experienced team breaks ground with one dedicated point of contact.
Walk through your finished dream home and start making memories.
Tell us where you want to build and we'll match you with your local team.
*Estimate only. Does not include taxes and insurance. WAC.
No construction loan required. Transparent pricing. Free site evaluation. 25+ years and 3,000+ homes built.
Fill out the form below and your local builder rep will send you full pricing and specs.