

*Plan may show available options and upgrades. Click to zoom. Scroll to zoom. Drag to pan.
Your Custom Home Floor Plan
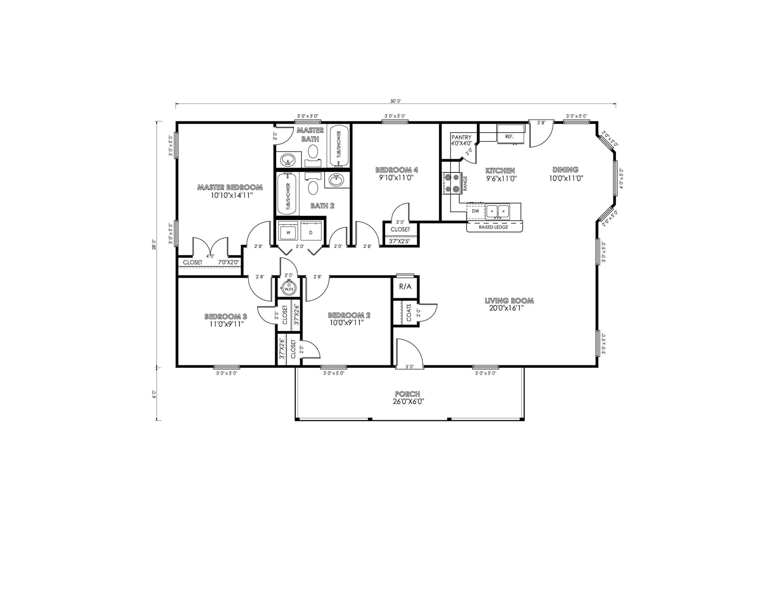
San Marcos Floor Plan
4 Beds
2 Baths
1,360 Sq Ft
$0 Down - No Payments During Construction*
*With approved credit. No traditional construction loan required.
Introducing the San Marcos-C floor plan, a beautifully crafted home spanning 1360 square feet of thoughtfully designed living space, offering comfort and style in a compact footprint. This home is ideal for those seeking a blend of modern living with traditional charm.
The master suite is well-appointed, providing a cozy retreat with a private bathroom and a sizable closet. The heart of the home, the living room, is spacious and inviting, perfect for family gatherings or relaxing evenings, with ample space flowing seamlessly into the dining area, ensuring a comfortable environment for meals and socializing.
The kitchen, efficient in design, features modern amenities, a convenient pantry for extra storage, and a layout that makes cooking and engaging with family or guests a breeze. Adjacent to the kitchen, the dining room offers a lovely space for sit-down meals, with direct access to the sizable porch for an extended dining experience outdoors.
Three additional bedrooms are nestled away from the main living areas, providing privacy and quiet spaces for all members of the household. The shared second bathroom is easily accessible, along with a practical laundry room, enhancing the home’s functionality.
Completing this charming home is the inviting porch, a perfect setting for enjoying the outdoors and enhancing the home’s curb appeal. With a total under-roof area of 1516 square feet, the San Marcos-C floor plan presents a comfortable and efficient living option, making it a perfect choice for those looking to maximize their living experience without sacrificing style and comfort.
Living Area
1,360 sq ft
Bedrooms
4
Bathrooms
2
Stories
1
Speak To Your New Custom Home Builder Today!
25+
Years Experience
3,000+
Homes Built
5
Office Locations
A+
BBB Rating
Make It Yours
Customize the San Marcos
Every floor plan is a starting point, not a box. Work directly with our design team to personalize every detail of the San Marcos to fit your land, your family, and your lifestyle - at a price that's clear from day one.
Cabinet styles and finishes
Flooring throughout
Countertops and backsplashes
Exterior colors and materials
Structural layout changes
Fixtures and hardware
Ceiling treatments
Porch and outdoor living
How It Works
Build the San Marcos in 5 Simple Steps
From free site evaluation to move-in day. One team, one price, one beautiful home.
01
Free Site Evaluation
We assess your land for build-readiness including soil, utilities, and access.
02
Choose Your Plan
Select the San Marcos or customize it. Bring your own plan too.
03
Get Clear Pricing
Transparent pricing with no hidden fees or surprises.
04
Build Begins
Our experienced team breaks ground with one dedicated point of contact.
05
Move In
Walk through your finished dream home and start making memories.
Take the Next Step
Get Details for the San Marcos
Tell us where you want to build and we'll match you with your local team.
Mortgage Calculator
*Estimate only. Does not include taxes and insurance. WAC.
$
$
%
Estimated Monthly Payment
$2,213/mo
Common Questions
San Marcos Floor Plan FAQ
Yes. Every Southwest Homes floor plan is a starting point. Work directly with our design team to personalize cabinet finishes, flooring, countertops, fixtures, exterior colors, and structural options. We adapt the San Marcos to fit your land, your family, and your lifestyle.
No - traditional construction loans require you to pay interest. We work with lenders who offer construction-to-permanent financing that simplifies this - often with $0 down and no payments and no interest until the build is complete. *WAC
Pricing depends on the floor plan, location, lot conditions, and customizations you choose. We provide transparent pricing with no hidden fees. Contact us for a personalized quote based on your specific plan and land.
Every home is different - the time frame changes from permit approval to move-in, depending on the plan size, site conditions, local permitting timelines, and even weather conditions. Your project manager will give you a specific schedule during the planning phase.
We typically serve a 100-mile radius around each of our offices in San Antonio, Corpus Christi, Canton TX, and Springdale AR. If you're unsure whether your land is in our service area, call your nearest office and we'll let you know right away.
Yes. Southwest Homes offers a Bring Your Own Plan option. If you have a design you love, our team can review it and provide pricing to build it on your land. Learn more about Bring Your Own Plan.
Ready to Build the San Marcos on Your Land?
No construction loan required. Transparent pricing. Free site evaluation. 25+ years and 3,000+ homes built.



