

*Plan may show available options and upgrades. Click to zoom. Scroll to zoom. Drag to pan.
Your Custom Home Floor Plan
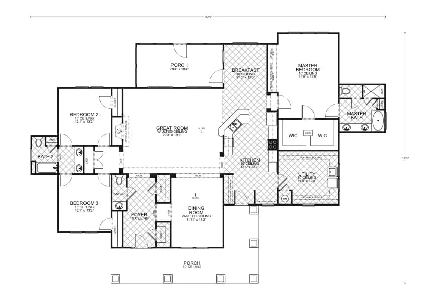
Brazos Floor Plan
3 Beds
2.5 Baths
2,648 Sq Ft
$0 Down - No Payments During Construction*
*With approved credit. No traditional construction loan required.
Step into the grandeur of this meticulously designed floor plan, a perfect blend of elegance and functionality that beckons those aspiring to create their custom dream home. The alluring front porch opens to a refined foyer, leading you into the heart of the home: a stately great room with a vaulted ceiling that exudes an airy and luxurious ambiance.
Adjacent to the great room is a sophisticated dining room with a vaulted ceiling, providing a grand setting for dinner parties and family gatherings. The seamless transition to the kitchen ensures that hosting is a breeze. The kitchen itself is a chef’s delight, complete with modern amenities and a layout that encourages culinary creativity.
Nestled for privacy, the master suite is a sanctuary of comfort, featuring a 10-foot ceiling and ample space for a restful retreat. The suite includes a lavish master bath with dual vanities, a soaking tub, a separate shower, and dual walk-in closets, offering a spa-like experience at home.
On the opposite side of the house, two additional bedrooms each boast 10-foot ceilings and share a full bathroom, providing comfortable spaces for family or guests. The thoughtful design includes a utility room for laundry and additional storage needs, ensuring that practicality accompanies this home’s stylish aesthetic.
Outdoor living is accentuated by a second porch, perfect for leisurely evenings or morning coffee in the embrace of nature. With a generous living area of approximately 2,468 square feet, this floor plan caters to those who desire a home that combines majestic architecture with intimate living spaces, making it an ideal canvas for bringing your vision of an elegant and welcoming home to life.
Living Area
2,648 sq ft
Bedrooms
3
Bathrooms
2.5
Stories
1
Speak To Your New Custom Home Builder Today!
25+
Years Experience
3,000+
Homes Built
5
Office Locations
A+
BBB Rating
Make It Yours
Customize the Brazos
Every floor plan is a starting point, not a box. Work directly with our design team to personalize every detail of the Brazos to fit your land, your family, and your lifestyle - at a price that's clear from day one.
Cabinet styles and finishes
Flooring throughout
Countertops and backsplashes
Exterior colors and materials
Structural layout changes
Fixtures and hardware
Ceiling treatments
Porch and outdoor living
How It Works
Build the Brazos in 5 Simple Steps
From free site evaluation to move-in day. One team, one price, one beautiful home.
01
Free Site Evaluation
We assess your land for build-readiness including soil, utilities, and access.
02
Choose Your Plan
Select the Brazos or customize it. Bring your own plan too.
03
Get Clear Pricing
Transparent pricing with no hidden fees or surprises.
04
Build Begins
Our experienced team breaks ground with one dedicated point of contact.
05
Move In
Walk through your finished dream home and start making memories.
Take the Next Step
Get Details for the Brazos
Tell us where you want to build and we'll match you with your local team.
Mortgage Calculator
*Estimate only. Does not include taxes and insurance. WAC.
$
$
%
Estimated Monthly Payment
$2,213/mo
Common Questions
Brazos Floor Plan FAQ
Yes. Every Southwest Homes floor plan is a starting point. Work directly with our design team to personalize cabinet finishes, flooring, countertops, fixtures, exterior colors, and structural options. We adapt the Brazos to fit your land, your family, and your lifestyle.
No - traditional construction loans require you to pay interest. We work with lenders who offer construction-to-permanent financing that simplifies this - often with $0 down and no payments and no interest until the build is complete. *WAC
Pricing depends on the floor plan, location, lot conditions, and customizations you choose. We provide transparent pricing with no hidden fees. Contact us for a personalized quote based on your specific plan and land.
Every home is different - the time frame changes from permit approval to move-in, depending on the plan size, site conditions, local permitting timelines, and even weather conditions. Your project manager will give you a specific schedule during the planning phase.
We typically serve a 100-mile radius around each of our offices in San Antonio, Corpus Christi, Canton TX, and Springdale AR. If you're unsure whether your land is in our service area, call your nearest office and we'll let you know right away.
Yes. Southwest Homes offers a Bring Your Own Plan option. If you have a design you love, our team can review it and provide pricing to build it on your land. Learn more about Bring Your Own Plan.
Ready to Build the Brazos on Your Land?
No construction loan required. Transparent pricing. Free site evaluation. 25+ years and 3,000+ homes built.



