Floor Plan

*Plan may show available options & upgrades.

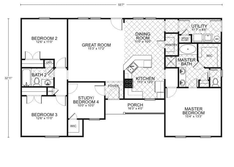
Durango - Custom Home Floor Plan

This versatile floor plan, the Durango, offers a unique combination of practical living and welcoming charm, making it an ideal template for your custom home. As you enter through the inviting porch, the foyer opens up to a spacious great room, a central gathering space perfect for entertainment and family time.

The kitchen, with its efficient layout, includes modern appliances and a pantry for additional storage, while the adjoining dining room provides a comfortable setting for meals with a view of the outdoors. The seamless integration of the kitchen and dining area encourages a congenial atmosphere for both cooking and dining.

The master suite, designed for privacy and tranquility, features a generous bedroom with an en-suite master bath, complete with a dual vanity, a large shower, and a substantial walk-in closet. The layout also includes two additional bedrooms with shared access to a full bath, perfect for family or guests.

One of the highlights of this plan is the flexibility of the study, which can easily be converted into a fourth bedroom, home office, or den, adapting to your changing needs. A functional utility room ensures laundry tasks are out of sight, contributing to the home’s orderly flow.

With a total living area of 1,632 square feet, this home is efficiently designed to maximize space without sacrificing style. The additional outdoor porch area provides a delightful space for relaxation and enjoying the fresh air, making the Durango an excellent choice for a comfortable, stylish home.

Mortgage Calculator

The calculated amount is an estimate, with the exact
loan terms determined on an individual basis.
Estimated calculated amount does not include taxes & insurance.
$ 200000
$ 150000
$ 750000
$
[downpayment]/[homeprice]*100
%
([homeprice]-[downpayment])*([interestrate]/100)/12/(1-Math.pow(1+([interestrate]/100)/12,-([loanterm]*12)))
$

Request More Information

Unlock "Build Now" Financing

Get 0% down + No Payment Until Completion
*With Approved Credit

$5,000

Save On Upgrades

LIMITED TIME OFFER - Sign up by 12/31/2025!

Receive $5,000 in Options & Upgrades
Plus: $0 Down + No Payment During Construction *WAC

LIMITED TIME OFFER
Sign up by 12/31/2025!

Receive $5,000 in Options & Upgrades
Plus: $0 Down + No Payment During Construction *WAC

$5,000

Save On Upgrades