
San Marcos C
4 Bed 2 Bath 1,360 sqft
View Plan

*Plan may show available options and upgrades. Click to zoom. Scroll to zoom. Drag to pan.
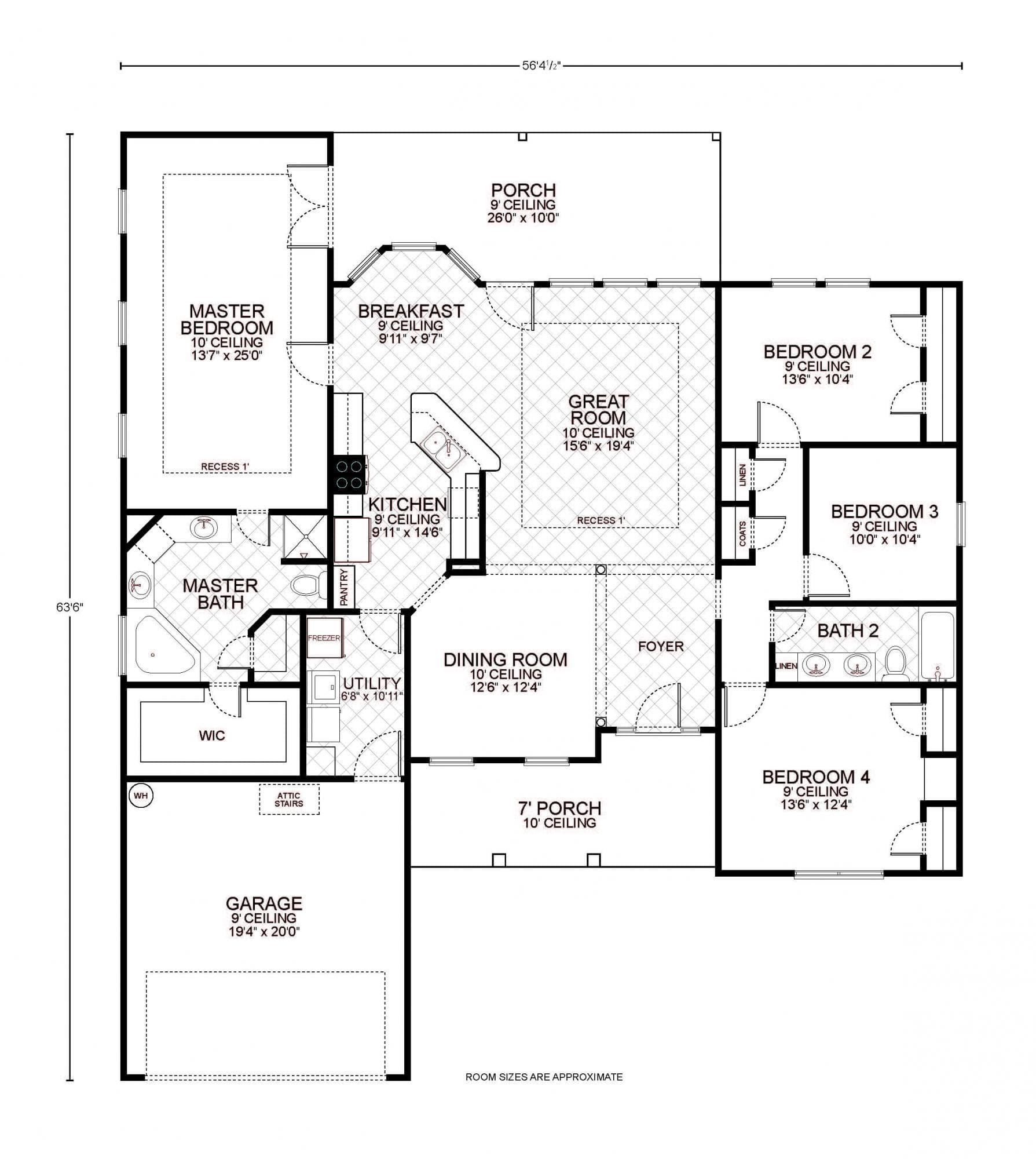
Welcome to this beautifully designed floor plan that promises an ideal mix of luxury, comfort, and practicality, covering approximately 2180 square feet of living space. The home’s layout is meticulously planned to facilitate a seamless flow of daily life while providing areas for rest and entertainment.
The majestic master bedroom is a true haven of tranquility, with its generous dimensions and an en suite master bath, complete with modern amenities and a spacious walk-in closet, ensuring privacy and relaxation. The open-concept design connects the great room, with its lofty 10-foot ceiling, to the kitchen and breakfast area, creating an airy and inviting atmosphere for family gatherings and social events.
The kitchen, with a 9-foot ceiling, is designed to be both beautiful and functional, featuring plenty of counter space for meal prep and casual dining. The adjacent breakfast nook provides a cozy spot for morning meals, leading out to a charming porch perfect for enjoying the outdoors.
Formal meals can be enjoyed in the elegant dining room, which boasts a 10-foot ceiling, providing a sophisticated ambiance. Three additional bedrooms, each with 9-foot ceilings, offer ample space for family and guests, accompanied by a full second bathroom for convenience.
The home also includes a practical utility room, a welcoming foyer, and a sizable two-car garage with a 9-foot ceiling. The inclusion of both a front porch and a back porch adds to the home’s charm, giving you multiple outdoor spaces to enjoy. With a total under-roof area of 2898 square feet, this home blends functionality with elegance, making it a perfect choice for those seeking a stylish yet comfortable living environment.
Every floor plan is a starting point, not a box. Work directly with our design team to personalize every detail of the Navasota to fit your land, your family, and your lifestyle - at a price that's clear from day one.
From free site evaluation to move-in day. One team, one price, one beautiful home.
We assess your land for build-readiness including soil, utilities, and access.
Select the Navasota or customize it. Bring your own plan too.
Transparent pricing with no hidden fees or surprises.
Our experienced team breaks ground with one dedicated point of contact.
Walk through your finished dream home and start making memories.
Tell us where you want to build and we'll match you with your local team.
*Estimate only. Does not include taxes and insurance. WAC.
No construction loan required. Transparent pricing. Free site evaluation. 25+ years and 3,000+ homes built.
Fill out the form below and your local builder rep will send you full pricing and specs.