Hillcrest Floor Plan - 3 Bed / 2.5 Bath / 2,200 Sq Ft

The Hillcrest.
Spacious Living,
Designed for You.

2,200 square feet of open-concept living designed for the way your family lives. Customizable inside and out - built on your lot with transparent pricing.

View Floor Plan
Ask About Our $0 Down Custom Home Financing. *WAC

Build the Hillcrest
on Your Land
Starting at $0 Down

Transparent pricing, no hidden fees, and no payments during construction. 25+ years and 3,000+ homes built across Texas and Arkansas.

Learn About Financing
Free Site Evaluation - Start Today

Build On Your Lot
The Hillcrest
Custom Built Home

From site evaluation to move-in day in 5 simple steps. One dedicated team, one clear price, one beautiful home.

See Our 5-Step Process
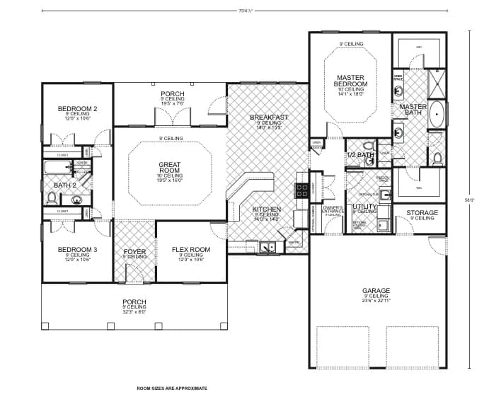
Hillcrest custom home floor plan - 3 Bed / 2.5 Bath / 2,200 Sq Ft

*Plan may show available options and upgrades. Click to zoom. Scroll to zoom. Drag to pan.

Your Custom Home Floor Plan

Hillcrest Floor Plan

3 Beds
2.5 Baths
2,200 Sq Ft
2 Cars
View All Plans
$0 Down - No Payments During Construction* *With approved credit. No traditional construction loan required.

The Hillcrest floor plan is a testament to modern architectural design, offering a blend of comfort, style, and practicality that makes it an ideal choice for your custom home. The floor plan reveals a spacious great room with a 9-foot ceiling, the central hub of the home for family gatherings and entertainment, accentuated by an abundance of natural light.

The kitchen is a chef’s dream, featuring an efficient layout, modern appliances, a pantry, and a convenient owner’s entrance. It flows into a cozy breakfast area, providing a perfect spot for informal meals, with easy access to the outdoor porch for an open-air dining experience. The plan also includes a flex room that can serve as an extra bedroom, home office, or den, catering to various needs and lifestyles.

The master bedroom, with its own 9-foot ceiling, is a private sanctuary designed to offer tranquility and comfort. It boasts a luxurious en-suite master bath with a spacious walk-in closet. Two additional bedrooms, each with ample closet space, share a full bathroom and are positioned to maximize privacy for family members or guests.

The utility room provides a discrete area for laundry and storage, enhancing the home’s functionality. With an expansive garage and additional storage space, the Hillcrest floor plan thoughtfully addresses all aspects of daily living.

This plan, encompassing a total living area of 2,200 square feet, is carefully crafted to provide an elegant and efficient living space, making it an excellent canvas for those seeking to create a home that is both inviting and practical.

Living Area 2,200 sq ft
Bedrooms 3
Bathrooms 2.5
Stories 1
Cars 2
Explore Financing Options Download Brochure

Speak To Your New Custom Home Builder Today!

SWH Of San Antonio 4001 N I-35 Frontage Rd New Braunfels, TX 78132 830-626-3030
SWH Of Canton 21774 Interstate 20 Wills Point, TX 75169 903-287-9119
SWH Of Corpus Christi 4250 Five Points Rd Corpus Christi, TX 78410 361-241-6011
SWH Of Springdale 4264 N. Thompson Springdale, AR 72764 479-756-2626
25+
Years Experience
3,000+
Homes Built
5
Office Locations
A+
BBB Rating
Make It Yours

Customize the Hillcrest

Every floor plan is a starting point, not a box. Work directly with our design team to personalize every detail of the Hillcrest to fit your land, your family, and your lifestyle - at a price that's clear from day one.

Cabinet styles and finishes
Flooring throughout
Countertops and backsplashes
Exterior colors and materials
Structural layout changes
Fixtures and hardware
Ceiling treatments
Porch and outdoor living
How It Works

Build the Hillcrest in 5 Simple Steps

From free site evaluation to move-in day. One team, one price, one beautiful home.

01

Free Site Evaluation

We assess your land for build-readiness including soil, utilities, and access.

02

Choose Your Plan

Select the Hillcrest or customize it. Bring your own plan too.

03

Get Clear Pricing

Transparent pricing with no hidden fees or surprises.

04

Build Begins

Our experienced team breaks ground with one dedicated point of contact.

05

Move In

Walk through your finished dream home and start making memories.

Take the Next Step

Get Details for the Hillcrest

Tell us where you want to build and we'll match you with your local team.

Mortgage Calculator

*Estimate only. Does not include taxes and insurance. WAC.

$
$
%
Estimated Monthly Payment
$2,213/mo
Google Rating
3,000+
Homes Built
$0
Down to Start
Common Questions

Hillcrest Floor Plan FAQ

Yes. Every Southwest Homes floor plan is a starting point. Work directly with our design team to personalize cabinet finishes, flooring, countertops, fixtures, exterior colors, and structural options. We adapt the Hillcrest to fit your land, your family, and your lifestyle.
No - traditional construction loans require you to pay interest. We work with lenders who offer construction-to-permanent financing that simplifies this - often with $0 down and no payments and no interest until the build is complete. *WAC
Pricing depends on the floor plan, location, lot conditions, and customizations you choose. We provide transparent pricing with no hidden fees. Contact us for a personalized quote based on your specific plan and land.
Every home is different - the time frame changes from permit approval to move-in, depending on the plan size, site conditions, local permitting timelines, and even weather conditions. Your project manager will give you a specific schedule during the planning phase.
We typically serve a 100-mile radius around each of our offices in San Antonio, Corpus Christi, Canton TX, and Springdale AR. If you're unsure whether your land is in our service area, call your nearest office and we'll let you know right away.
Yes. Southwest Homes offers a Bring Your Own Plan option. If you have a design you love, our team can review it and provide pricing to build it on your land. Learn more about Bring Your Own Plan.

Ready to Build the Hillcrest on Your Land?

No construction loan required. Transparent pricing. Free site evaluation. 25+ years and 3,000+ homes built.