Floor Plan

*Plan may show available options & upgrades.

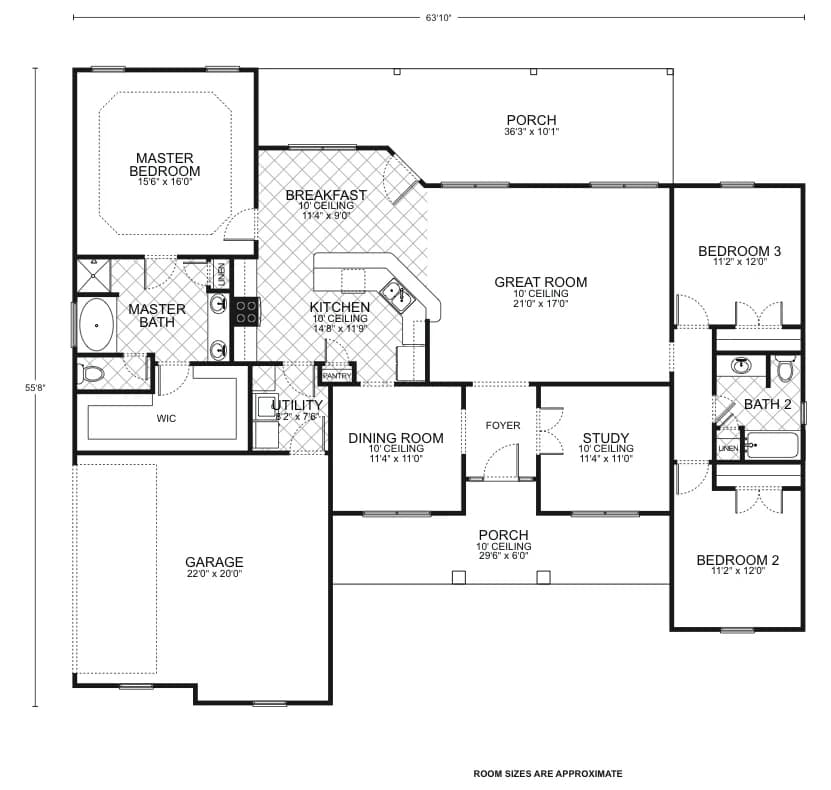
Hillsboro - Custom Home Floor Plan

The Hillsboro floor plan presents an impressive combination of spaciousness and warmth, perfect for those seeking to custom-build a home with both style and functionality. The expansive porch sets the stage for a welcoming entrance into the home, leading into a foyer that opens to a grand great room with a 10-foot ceiling, offering ample space for entertaining and comfortable daily living.

The kitchen, designed with the home chef in mind, features a large island, generous counter space, and a walk-in pantry, all while remaining open to the breakfast area for easy morning gatherings. A formal dining room with a 10-foot ceiling provides a sophisticated space for dinners and special occasions.

The master suite is crafted as a private haven, boasting a large bedroom area, a luxurious master bath with dual vanities, a separate shower, and a spacious walk-in closet. On the opposite side of the home, two additional bedrooms offer privacy and convenience, sharing access to the second full bath. A study with a 10-foot ceiling adds flexibility to the floor plan, functioning as a home office or an additional bedroom as needed.

A utility room situated off the kitchen ensures practicality in the home’s layout, leading to a sizable garage. With a living area of 2,033 square feet, this home is carefully designed to maximize both living and storage space, offering a comfortable and elegant environment that is ideal for both families and entertainers alike.

Mortgage Calculator

The calculated amount is an estimate, with the exact
loan terms determined on an individual basis.
Estimated calculated amount does not include taxes & insurance.
$ 200000
$ 150000
$ 750000
$
[downpayment]/[homeprice]*100
%
([homeprice]-[downpayment])*([interestrate]/100)/12/(1-Math.pow(1+([interestrate]/100)/12,-([loanterm]*12)))
$

Request More Information

Unlock "Build Now" Financing

Get 0% down + No Payment Until Completion
*With Approved Credit

$5,000

Save On Upgrades

LIMITED TIME OFFER - Sign up by 12/31/2025!

Receive $5,000 in Options & Upgrades
Plus: $0 Down + No Payment During Construction *WAC

LIMITED TIME OFFER
Sign up by 12/31/2025!

Receive $5,000 in Options & Upgrades
Plus: $0 Down + No Payment During Construction *WAC

$5,000

Save On Upgrades