
Lockhart B
4 Bed 2 Bath 2,427 sqft
View Plan

*Plan may show available options and upgrades. Click to zoom. Scroll to zoom. Drag to pan.
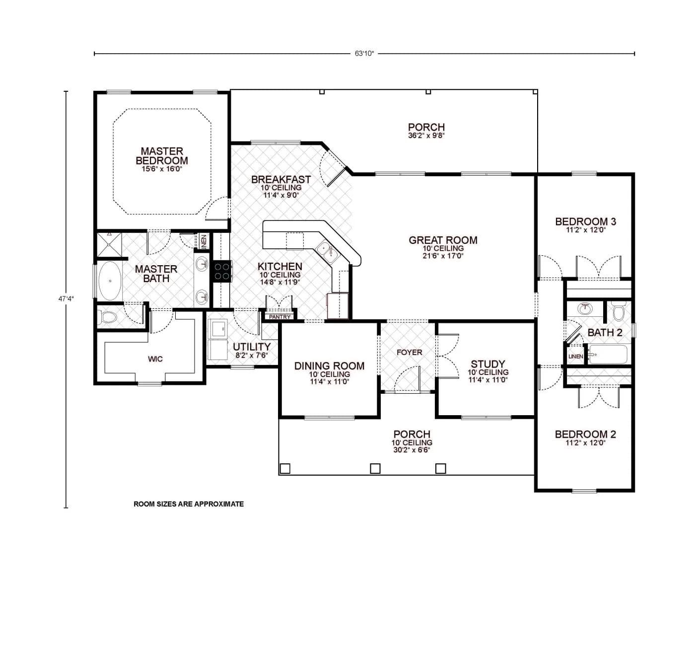
The Kendall B floor plan offers a sophisticated blend of modern living and timeless charm, making it a perfect template for those seeking to construct a custom home tailored to their lifestyle. The welcoming front porch ushers you into a spacious foyer that leads to a stunning great room with a lofty 10-foot ceiling, ideal for both casual lounging and elegant entertaining.
The kitchen is a culinary enthusiast’s dream, featuring a large island and a walk-in pantry. It adjoins a comfortable breakfast nook for informal dining and shares an open space with the great room, facilitating social interaction. The formal dining room, accented by a 10-foot ceiling, provides an exclusive area for sit-down dinners and special occasions.
The master suite is a luxurious retreat with its own 10-foot ceiling, ensuring a spacious and restful environment. It includes a master bath with dual vanities, a walk-in closet, and plenty of storage. Two additional bedrooms are thoughtfully placed to ensure privacy and convenience, each with easy access to a full bath, perfect for family or guests.
A study room with a 10-foot ceiling presents a versatile space that can be used as a home office or additional bedroom, depending on your needs. The utility room is smartly located for efficient household management. With a total living area of 2,033 square feet and additional porch space, this home design is carefully crafted to provide an elegant yet comfortable living experience, making the Kendall B an ideal choice for your custom-built home.
Every floor plan is a starting point, not a box. Work directly with our design team to personalize every detail of the Kendall B to fit your land, your family, and your lifestyle - at a price that's clear from day one.
From free site evaluation to move-in day. One team, one price, one beautiful home.
We assess your land for build-readiness including soil, utilities, and access.
Select the Kendall B or customize it. Bring your own plan too.
Transparent pricing with no hidden fees or surprises.
Our experienced team breaks ground with one dedicated point of contact.
Walk through your finished dream home and start making memories.
Tell us where you want to build and we'll match you with your local team.
*Estimate only. Does not include taxes and insurance. WAC.
No construction loan required. Transparent pricing. Free site evaluation. 25+ years and 3,000+ homes built.
Fill out the form below and your local builder rep will send you full pricing and specs.