

*Plan may show available options and upgrades. Click to zoom. Scroll to zoom. Drag to pan.
Your Custom Home Floor Plan
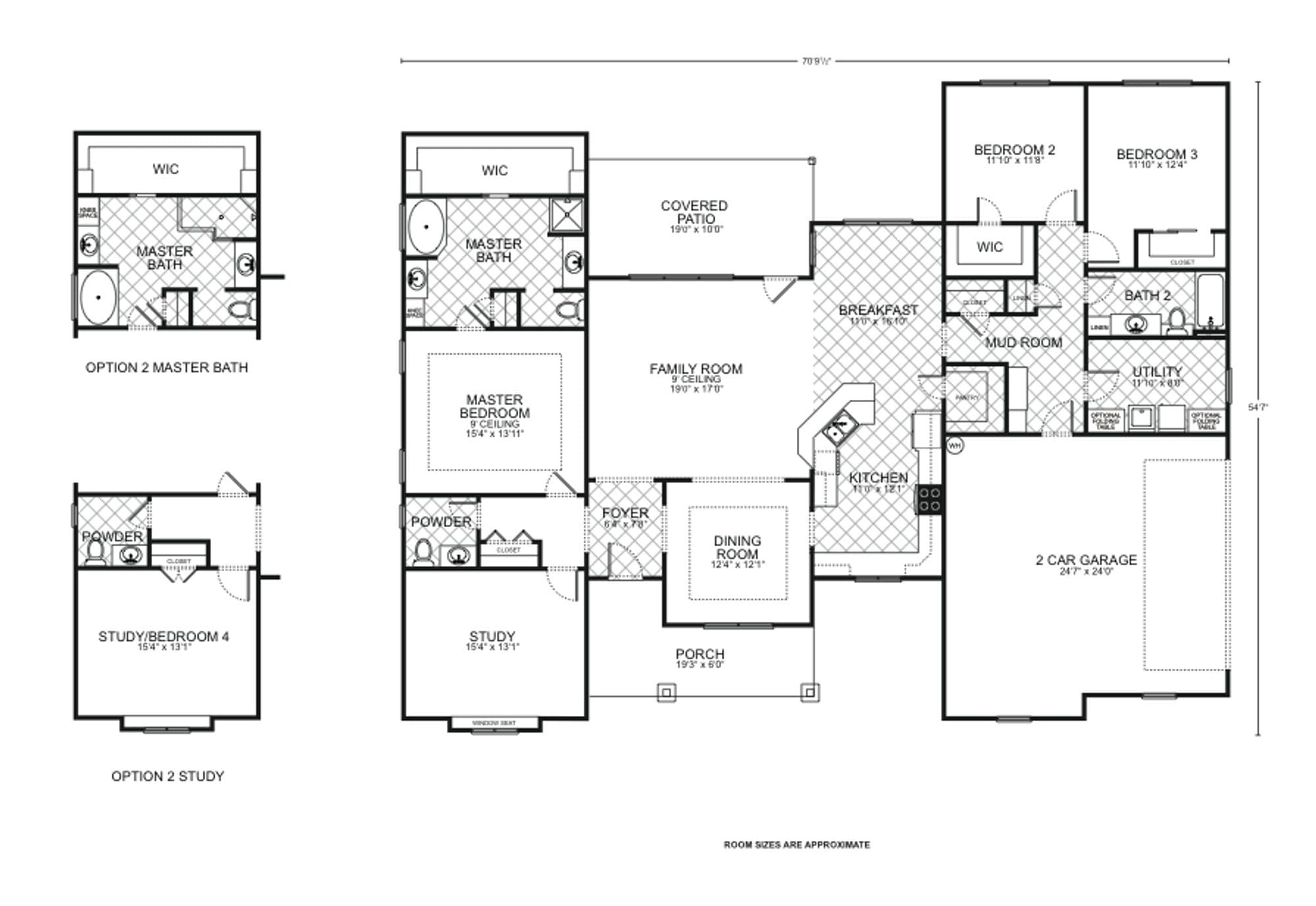
Lantana Floor Plan
4 Beds
2.5 Baths
2,449 Sq Ft
2 Cars
$0 Down - No Payments During Construction*
*With approved credit. No traditional construction loan required.
The Lantana floor plan is a thoughtfully designed space that exemplifies contemporary living with a touch of traditional charm, ideal for building a custom home that meets all your desires. The expansive front porch opens into an inviting foyer that leads to a family room with a 9-foot ceiling, offering a vast area for family enjoyment and entertainment.
The heart of the home is the kitchen, designed with functionality and style in mind, featuring an island, a walk-in pantry, and a cozy breakfast nook that overlooks a covered patio, perfect for alfresco dining or morning coffee. The formal dining room provides a separate space for more elegant occasions.
The master suite is crafted as a private sanctuary, with a spacious bedroom, an optional master bath layout, and a large walk-in closet. The home includes two additional bedrooms, each with easy access to the second full bath, and a study that can also serve as a fourth bedroom, offering flexibility for your lifestyle needs.
A utility room and a mudroom ensure practical daily management, and the two-car garage provides ample space for vehicles and storage. With a living area of 2,449 square feet, the Lantana floor plan is designed to provide comfort, elegance, and practicality, making it a wonderful choice for those seeking a home that is both inviting and functional.
Living Area
2,449 sq ft
Bedrooms
4
Bathrooms
2.5
Stories
1
Cars
2
Speak To Your New Custom Home Builder Today!
25+
Years Experience
3,000+
Homes Built
5
Office Locations
A+
BBB Rating
Make It Yours
Customize the Lantana
Every floor plan is a starting point, not a box. Work directly with our design team to personalize every detail of the Lantana to fit your land, your family, and your lifestyle - at a price that's clear from day one.
Cabinet styles and finishes
Flooring throughout
Countertops and backsplashes
Exterior colors and materials
Structural layout changes
Fixtures and hardware
Ceiling treatments
Porch and outdoor living
How It Works
Build the Lantana in 5 Simple Steps
From free site evaluation to move-in day. One team, one price, one beautiful home.
01
Free Site Evaluation
We assess your land for build-readiness including soil, utilities, and access.
02
Choose Your Plan
Select the Lantana or customize it. Bring your own plan too.
03
Get Clear Pricing
Transparent pricing with no hidden fees or surprises.
04
Build Begins
Our experienced team breaks ground with one dedicated point of contact.
05
Move In
Walk through your finished dream home and start making memories.
Take the Next Step
Get Details for the Lantana
Tell us where you want to build and we'll match you with your local team.
Mortgage Calculator
*Estimate only. Does not include taxes and insurance. WAC.
$
$
%
Estimated Monthly Payment
$2,213/mo
Common Questions
Lantana Floor Plan FAQ
Yes. Every Southwest Homes floor plan is a starting point. Work directly with our design team to personalize cabinet finishes, flooring, countertops, fixtures, exterior colors, and structural options. We adapt the Lantana to fit your land, your family, and your lifestyle.
No - traditional construction loans require you to pay interest. We work with lenders who offer construction-to-permanent financing that simplifies this - often with $0 down and no payments and no interest until the build is complete. *WAC
Pricing depends on the floor plan, location, lot conditions, and customizations you choose. We provide transparent pricing with no hidden fees. Contact us for a personalized quote based on your specific plan and land.
Every home is different - the time frame changes from permit approval to move-in, depending on the plan size, site conditions, local permitting timelines, and even weather conditions. Your project manager will give you a specific schedule during the planning phase.
We typically serve a 100-mile radius around each of our offices in San Antonio, Corpus Christi, Canton TX, and Springdale AR. If you're unsure whether your land is in our service area, call your nearest office and we'll let you know right away.
Yes. Southwest Homes offers a Bring Your Own Plan option. If you have a design you love, our team can review it and provide pricing to build it on your land. Learn more about Bring Your Own Plan.
Ready to Build the Lantana on Your Land?
No construction loan required. Transparent pricing. Free site evaluation. 25+ years and 3,000+ homes built.



