
San Marcos
4 Bed 2 Bath 1,360 sqft
View Plan

*Plan may show available options and upgrades. Click to zoom. Scroll to zoom. Drag to pan.
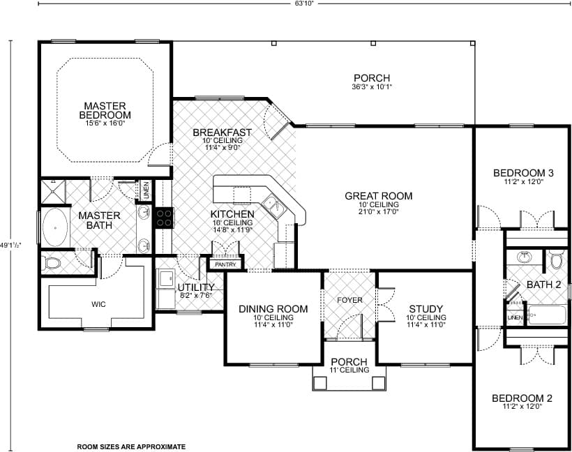
The Kendall C floor plan is a beautifully designed space that combines modern elegance with practical living. It features a spacious great room with a 10-foot ceiling, perfect for family gatherings and entertaining guests. The large kitchen is equipped with a pantry and an island that opens up to the breakfast nook, creating an inviting area for casual dining. A separate formal dining room offers a space for more traditional meals.
The master suite is a luxurious retreat with a walk-in closet and an en-suite bath, providing a private oasis for relaxation. Two additional bedrooms and a study, which can be used as a fourth bedroom, offer flexible space for family or a home office. The utility room and two porches, one at the entrance and another at the back, add to the home’s functionality and charm.
With 2,036 square feet of living space, the Kendall C floor plan is thoughtfully designed to optimize comfort and style, making it an ideal choice for a family looking for a blend of modern design and cozy living.
Every floor plan is a starting point, not a box. Work directly with our design team to personalize every detail of the Kendall C to fit your land, your family, and your lifestyle - at a price that's clear from day one.
From free site evaluation to move-in day. One team, one price, one beautiful home.
We assess your land for build-readiness including soil, utilities, and access.
Select the Kendall C or customize it. Bring your own plan too.
Transparent pricing with no hidden fees or surprises.
Our experienced team breaks ground with one dedicated point of contact.
Walk through your finished dream home and start making memories.
Tell us where you want to build and we'll match you with your local team.
*Estimate only. Does not include taxes and insurance. WAC.
No construction loan required. Transparent pricing. Free site evaluation. 25+ years and 3,000+ homes built.
Fill out the form below and your local builder rep will send you full pricing and specs.