Floor Plans
- Our Custom Floor Plans
- Bring Your Own Plans
- Our Available Homes
About Us
- Our Story
- Our Mission
- Trade Partners
- FAQ's
- Custom Home Process
- Financing
Our Locations
– Canton, TX (SWH)
– Corpus Christi, TX (SWH)
– San Antonio, TX (SWH)
– Portland, TX (SWH)
– Springdale, AR (SWH)
Contact Us
- Refer A Friend
- Become A Trade Partner
- Careers
Blog
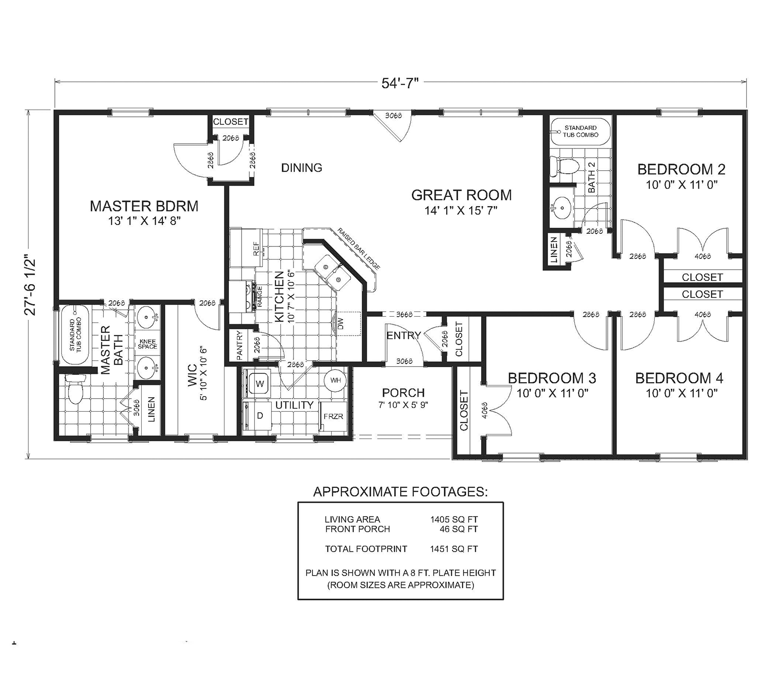
*Plan may show available options & upgrades.
Get 0% down + No Payment Until Completion
*With Approved Credit
Save On Upgrades
Receive $5,000 in Options & Upgrades
Plus: $0 Down + No Payment During Construction
*WAC
Receive $5,000 in Options & Upgrades
Plus: $0 Down + No Payment During Construction
*WAC
Save On Upgrades