
Driftwood A
3 Bed 2 Bath 1,853 sqft
View Plan

*Plan may show available options and upgrades. Click to zoom. Scroll to zoom. Drag to pan.
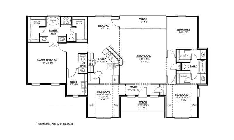
This expansive floor plan delivers a refined balance of openness, privacy, and thoughtful functionality, making it well-suited for both everyday living and entertaining. At the center of the home, the large great room features impressive ceiling height and generous proportions, creating a bright and inviting space for gathering with family or hosting guests. Its open connection to the dining area and kitchen encourages seamless movement and a natural flow throughout the main living spaces.
The kitchen is designed with efficiency and style in mind, offering ample counter space, a functional layout, and a convenient pantry for storage. Positioned nearby, the dining area provides a comfortable setting for family meals or special occasions, while maintaining easy access to both indoor and outdoor living areas. A covered patio extends the living space outdoors, offering a relaxed setting for dining, entertaining, or enjoying quiet moments outside.
The master suite serves as a private retreat, featuring a spacious bedroom and a well-appointed bath with dual vanities, a soaking tub, a separate shower, and dual walk-in closets for added comfort and organization. Secondary bedrooms are thoughtfully distributed across the home, each offering comfortable dimensions, walk-in closets, and access to full baths, providing privacy for family members or guests. An additional bedroom near the front of the home offers flexibility as a guest room, home office, or multi-purpose space.
Additional highlights include a welcoming foyer, a centrally located utility room, ample storage throughout, and multiple porches that enhance both curb appeal and outdoor enjoyment. With approximately 2,020 square feet of living space and a total footprint of around 2,180 square feet, this floor plan offers a spacious, well-organized layout that combines comfort, versatility, and timeless design, making it an excellent foundation for a personalized custom home.
Every floor plan is a starting point, not a box. Work directly with our design team to personalize every detail of the Kenadian to fit your land, your family, and your lifestyle - at a price that's clear from day one.
From free site evaluation to move-in day. One team, one price, one beautiful home.
We assess your land for build-readiness including soil, utilities, and access.
Select the Kenadian or customize it. Bring your own plan too.
Transparent pricing with no hidden fees or surprises.
Our experienced team breaks ground with one dedicated point of contact.
Walk through your finished dream home and start making memories.
Tell us where you want to build and we'll match you with your local team.
*Estimate only. Does not include taxes and insurance. WAC.
No construction loan required. Transparent pricing. Free site evaluation. 25+ years and 3,000+ homes built.
Fill out the form below and your local builder rep will send you full pricing and specs.